Tarefa - Avaliação Parte 2/2 (Conjunto)
Condições de conclusão
Aberto: terça-feira, 3 dez. 2024, 23:00
Vencimento: quarta-feira, 12 fev. 2025, 19:00
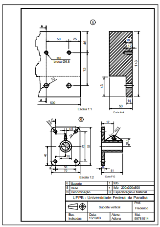
Realizar a tarefa a seguir, que será considerada como a segunda parte da prova na avaliação do semestre: a tarefa consiste em realizar, no CAD, o desenho de conjunto e de detalhes do arquivo em anexo. O prazo para envio é o que consta abaixo. Os outros arquivos são para informar as medidas e como desenhar as porcas e parafusos. A explicação sobre como trabalhar com conjuntos será feito em aula ou com a apostila complementar de teoria.
Obs.: Substituir o logotipo da folha pelo do IFSP.


- 27 julho 2023, 22:11 PM
- 27 julho 2023, 22:11 PM
- 27 julho 2023, 22:11 PM